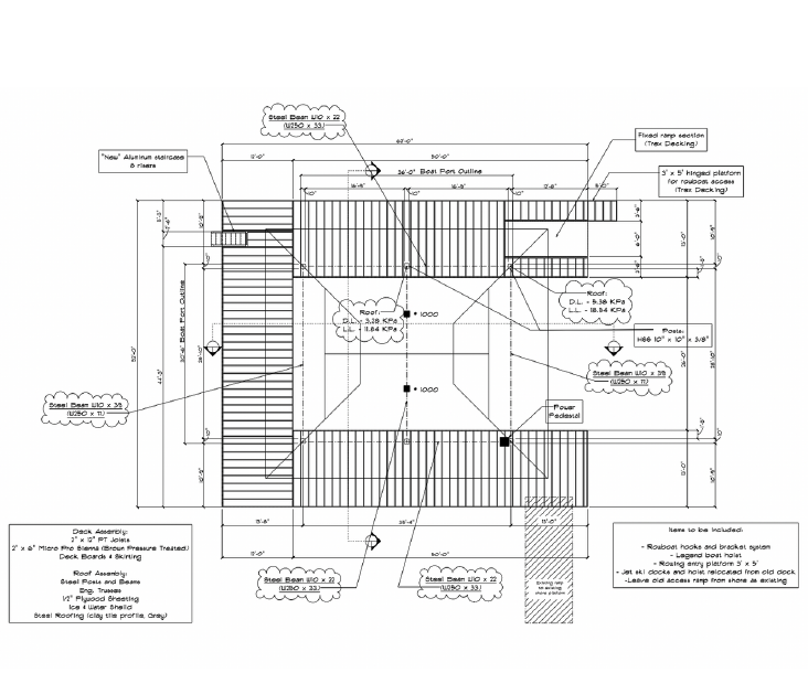
Floating Boat Port

This custom boat port has ultimate wet slip capability with a state-of-the-art aluminum boat lift. Crafted in-house, this structure has a 36-inc spiral welding floating tubes for unrivalled stability. With vertical aluminum custom kayak and row boat racks, adventure is always within reach.